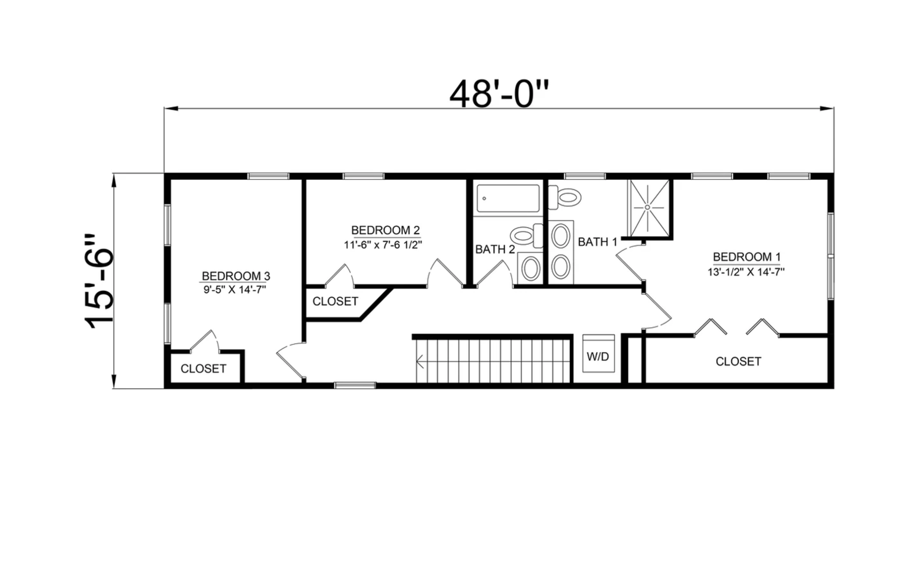
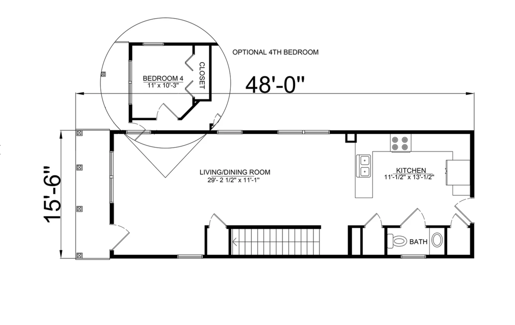
The Summit.
3 or 4 BR 1588 sq ft home for only $159,999.
Pricing for move-in ready modular home only. Land, improvements & foundation not included.
The Summit: Elevate Your Everyday
Rise to new heights with The Summit, a thoughtfully designed 1,588 sq. ft. floorplan that combines charm, comfort, and functionality. Featuring 3 or 4 bedrooms and 1.5 baths, this home is perfect for families or those seeking a spacious, standalone retreat. With an open layout, modern amenities, and timeless design, The Summit offers the perfect foundation for a life well-lived.





